Площадь:
30 м2
Количество модулей:
2
Размеры Д*Ш:
5 м * 6 м
Высота потолков:
2,6 м
Стоимость:
от 1100000 руб.

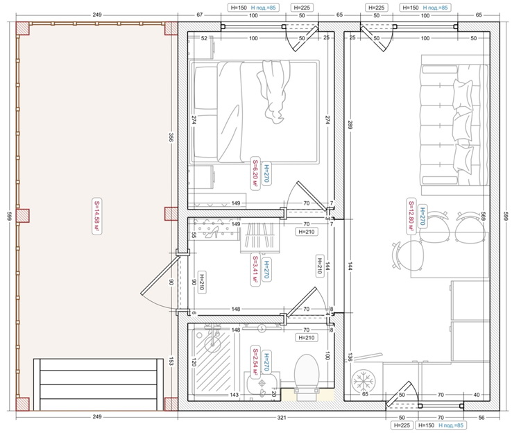
Планировка

Изображение

Комплектация

Комплектация делится на 2 категории:

1 – лайт (до -10 градусов):

  • стены из доски камерной сушки шириной 10 см,
  • пол и потолок 15 см,
  • утепление минвата,
  • ветрозащита,
  • фанера на полах 15 см, на стенах и потолках 6 см.

2 – полный (до -50 градусов):

  • стены из доски камерной сушки шириной 15 см,
  • пол и потолок 20 см,
  • утепление 5 см ппу+минвата,
  • ветрозащита,
  • фанера на полах 18 мм, на стенах и потолках 9 мм.

Базовая – включает в себя:

Стены, потолки и полы: фанера без покрытия.

Фасад:

  • доска четверть с покрытием;
  • имитация бруса с покрытием;
  • профлист RAL.

Кровля:

  • плоская с пвх мембраной;
  • скатная с профлистом или гибкой черепицей.
Пластиковые окна без ламинации.
Дверь металлическая климатическая.
С/у без сантехники.
Проводка и коммуникации скрытые в стенах с выводами внутрь.

Стандарт – включает в себя внутреннюю отделку:

Стены:

  • имитация бруса с покрытием;
  • декоративная фанера с покрытием;
  • декоративные панели.

Потолки:

  • имитация бруса;
  • натяжной потолок.

Пол:

  • кварцвинил;
  • ламинат.

Фасад:

  • доска четвертьcпокрытием;
  • имитация бруса с покрытием;
  • профлистRAL.

Кровля:

  • плоская с пвх мембраной;
  • скатная с профлистом или гибкой черепицей.
Пластиковые окна без ламинации.
Дверь металлическая климатическая.
С/у с отделкой стен и потолка без сантехники.
Проводка и коммуникации скрытые в стенах с выводами внутрь.

Комфорт – включает в себя:

Стены:

  • имитация бруса с покрытием;
  • декоративная фанера с покрытием;
  • декоративные панели.

Потолки:

  • имитация бруса;
  • натяжной потолок.

Пол:

  • кварцвинил;
  • ламинат.

Фасад:

  • доска четвертьcпокрытием;
  • иммитация бруса с покрытием;
  • профлист RAL.

Кровля:

  • плоская с пвх мембраной;
  • скатная с профлистом или гибкой черепицей.
Пластиковые окна с ламинацией.
Дверь металлическая климатическая.
С/у с отделкой стен и потолка с сантехникой.
Коммуникации и электрика скрытые в стенах с выводами внутрь, розетками, светильниками.
Электрические теплые полы в зонах входа, с/у и кухни.
Отопление: электрообогреватели Baluс wifi.
Терраса большая с кровлей.

Премиум – включает в себя:

Стены:

  • имитация бруса с покрытием;
  • декоративная фанера с покрытием;
  • декоративные панели.

Потолки:

  • имитация бруса;
  • натяжной потолок.

Пол:

  • кварцвинил;
  • ламинат.

Фасад:

  • доска четвертьcпокрытием;
  • иммитация бруса с покрытием;
  • профлист RAL.

Кровля:

  • плоская с пвх мембраной;
  • скатная с профлистом или гибкой черепицей.
Пластиковые панорамные окна с ламинацией.
Дверь стеклянная.
С/у с отделкой стен и потолка с сантехникой.
Коммуникации и электрика скрытые в стенах с выводами внутрь, розетками, светильниками.
Электрические теплые полы в зонах входа, с/у и кухни.
Отопление: электрообогреватели Baluс wifi, либо водяной т.п.
Полное мебелирование дома.
Кондиционер.
Терраса.

Цены

Базовая лайт 1100000 руб.
Базовая полный 1300000 руб.
Стандарт лайт 1500000 руб.
Стандарт полный 1700000 руб.
Комфорт 1900000 руб.
Премиум 2200000 руб.