Производство

Арх-модуль

Компания производитель максимально экологичных и экономичных домов.

Основная наша задача — строить для людей качественные, стильные и современные дома для комфортной жизни и отдыха. При этом мы стремимся оградить клиента от мыслей и переживаний связанных с процессом строительства и запуска дома в эксплуатацию.

После согласования проекта, выбранного клиентом, начинается этап строительства дома. Заводское производство модульных домов позволяет производить точный контроль на всех этапах строительства. Прежде всего создается каркас, который обеспечивает прочность и точную геометрию конструкции. Следующим этапом производится монтаж электрики, отопления, водоснабжения и вентиляции. После этого мы работаем над качественной теплоизоляцией дома, а также внутренней и внешней отделкой.

Прозрачный процесс работы

Этапы
производства

  • Проектирование
  • Изготовление каркаса
  • Антисептирование
  • Внутренняя отделка
  • Монтаж коммуникаций (электрика, канализация, водопровод)
  • Утепление
  • Ветрозащита
  • Установка окон и дверей
  • Фасадные и кровельные работа
  • Подготовка фундамента
  • Доставка и монтаж
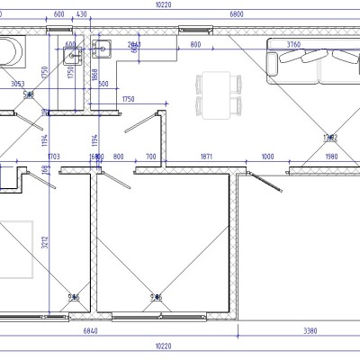
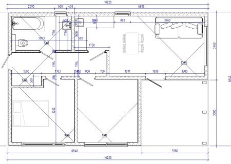
Проектирование

Включает в себя выбор готового или разработку индивидуального проекта, учитываются все пожелания клиента в отношении комплектации дома.

01
Изготовление каркаса

Каркас изготавливается из качественной сухой строганой доски с соблюдением точной геометрии. Делается усиление каркаса либо укосинами из доски, либо за счет обшивки листовыми материалами.

02
Антисептирование

Весь каркас обрабатывается специализированным антисептическим средством, что значительно продлевает срок службы древесины.

03
Внутренняя отделка

Имитация бруса в любых цветовых решениях, а также декоративная фанера.

04
Монтаж коммуникаций (электрика, канализация, водопровод)

Электропроводка разведена внутри каркаса дома. Канализация и водопровод так же монтируется в каркасе дома согласно проекту.

05
Утепление

Для обеспечения качественного утепления дома мы используем ППУ, а также мин вату известного бренда Knauf, так как именно она обладает наилучшими характеристиками.

06
Ветрозащита

Ветро-влагозащитный слой делается снаружи каркаса стен, что защищает конструкцию от различных погодных условий и предотвращает появление плесени и грибка.

07
Установка окон и дверей

Монтаж окон и дверей выполняется специализированными бригадами с завода-изготовителя окон и с гарантией качества.

08
Фасадные и кровельные работа

Кровля может быть выполнена как из качественного профнастила или металлочерепицы, так и возможен вариант «эксплуатируемой» плоской кровли, с использованием ПВХ мембраны.

09
Подготовка фундамента

Осмотр подъездных путей. Согласование планировки дома на участке. Монтаж свайного поля.

10
Доставка и монтаж

Модули транспортируются на манипуляторах или специализированных низкорамных платформах, после чего автокраном аккуратно устанавливаются на фундамент. После этого модули плотно стыкуются и производится герметизация стыков.

11

Фотоматериалы

Фотографии сданных
заказов

Заявка
на предварительный расчёт

Максимум 5 файлов.
Ограничение 10 МБ.
Допустимые типы: jpg, jpeg, png, bmp, eps, pict, txt, rtf, odf, pdf, doc, docx, ppt, pptx, xls, xlsx, svg.
CAPTCHA
CAPTCHA на основе изображений
Введите символы, которые показаны на картинке.
Этот вопрос задается для того, чтобы выяснить, являетесь ли Вы человеком или представляете из себя автоматическую спам-рассылку.